Gutshaus Kletzin: Ausstattung
Zur besseren Orientierung und Planung stellen wir Ihnen gerne die Grundrisse des Hauses zur Verfügung.
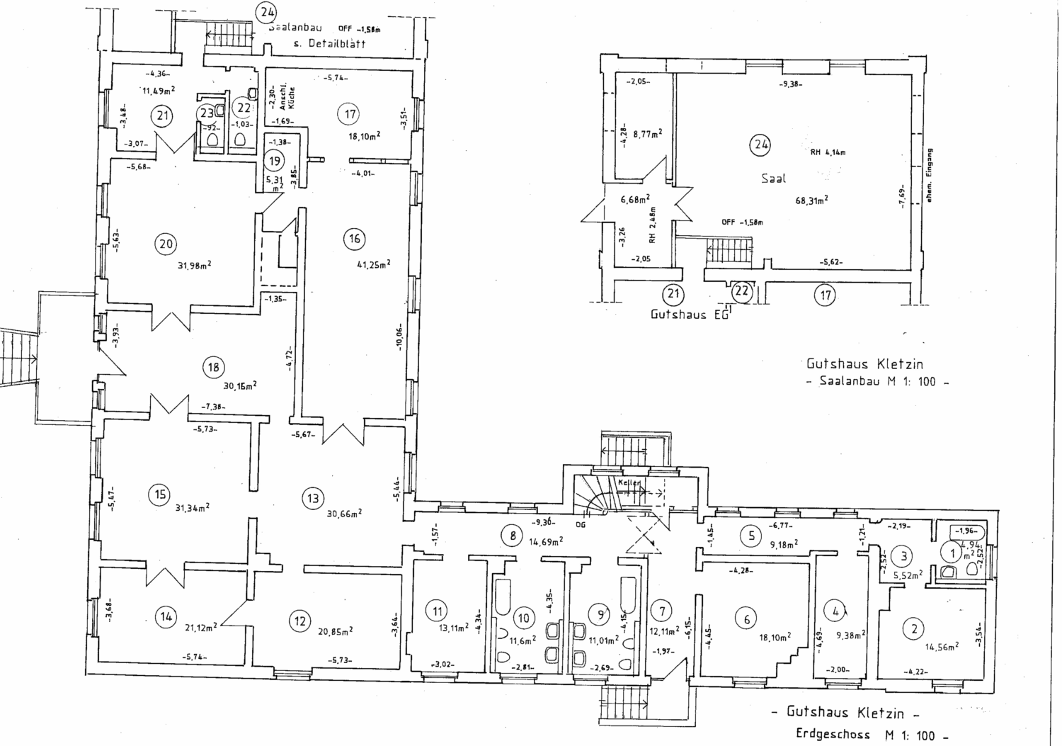
Erdgeschoss
Raumaufteilung Erdgeschoss:
- Schlafzimmer: 2, 4, 6, 11, 12
- Küche: 17
- Esszimmer-Nr. 16
- WC: 22, 23
- Badezimmer: 1, 9, 10
- Billiard-Zimmer: 14
- Salon: 15, 20
- Saal: 24
- Durchgangszimmer: 13, 21, 18
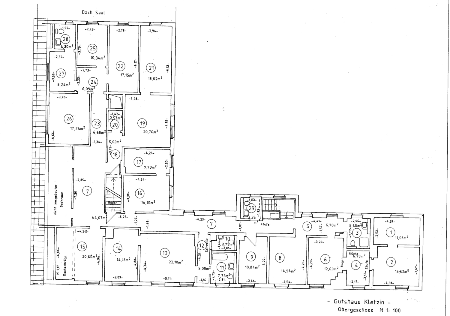
Obergeschoss
Raumaufteilung Obergeschoss:
- Schlafzimmer: 1, 2, 6, 8, 9, 13, 14, 15, 16, 17, 19, 21, 22, 25, 26, 27
- Teeküche: 4
- WC: 29, 10
- Badezimmer: 3, 11, 28
- Durchgangszimmer: 12, 18, 24


